Création du futur lycée de secteur à Magny en Vexin !

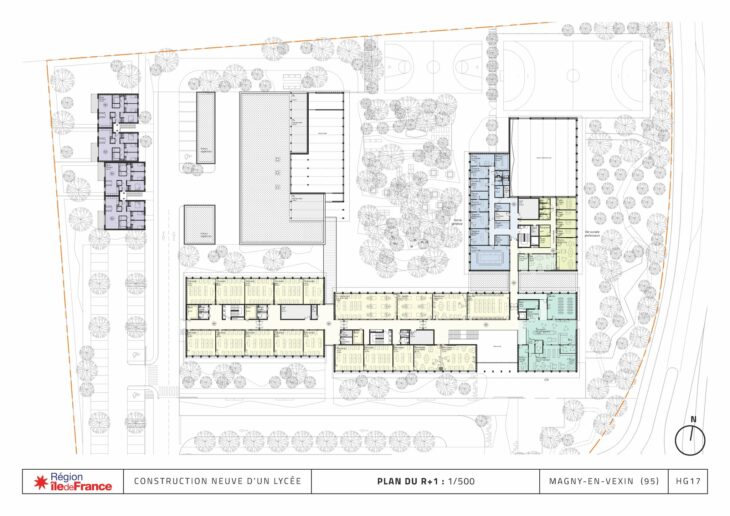
D’une capacité de 600 places, le lycée sera édifié sur le terrain situé à la jonction des départementales 86 et 983 et accueillera ses premiers élèves à la rentrée 2028.


Une nouvelle étape vers l’aboutissement de ce projet attendu depuis 35 ans, dont la réussite tient à l’engagement des élus locaux et des parlementaires pleinement mobilisés derrière la Région, qui finance cette nouvelle infrastructure à hauteur de 50 millions d’euros, tandis que la commune de Magny en Vexin prendra en charge la viabilisation du terrain, qu’elle a cédé à l’euro symbolique.

Le site, dont les travaux démarreront officiellement en 2026, s’articulera autour de quatre bâtiments (et d’une annexe abritant les logements de fonction), d’une salle multisport, de deux terrains et d’un espace de restauration.
Suite à la présentation du 14 juin 2025 à la salle des fêtes de Magny en Vexin, la maquette et les documents de présentation sont visibles en mairie de Chaussy la semaine prochaine
- samedi 22/11/2025 de 9h à 11h
- lundi 24/11/2025 de 9h à 17h
- jeudi 27/11/2025 de 9h à 17h



